Chalet Saint-Pierre – Abondance

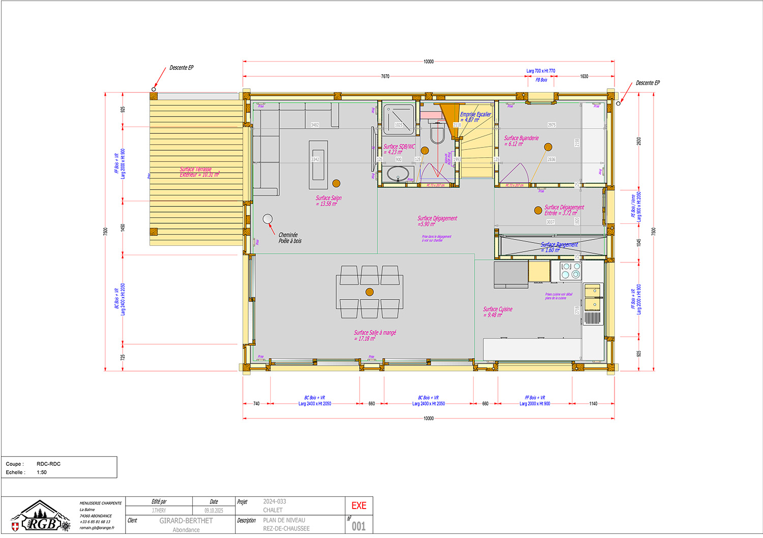
À Abondance, au lieu-dit Saint‑Pierre (2157 route de Richebourg), l’entreprise RGB réalise actuellement un chalet neuf au charme montagnard, offrant de beaux volumes avec 150 m² au total dont 137 m² habitables, répartis sur deux étages. Pensé pour un confort au quotidien, il s’accompagne d’un abri voitures 3 places, idéal en toute saison.

Un bien rare sur le secteur pour profiter pleinement de la vie en vallée d’Abondance.

Surface : 150 m2 (137 m2 habitable)
Équipements : Abri voitures 3 places
Surface : 590000 €